Sedona MLS Listings Search
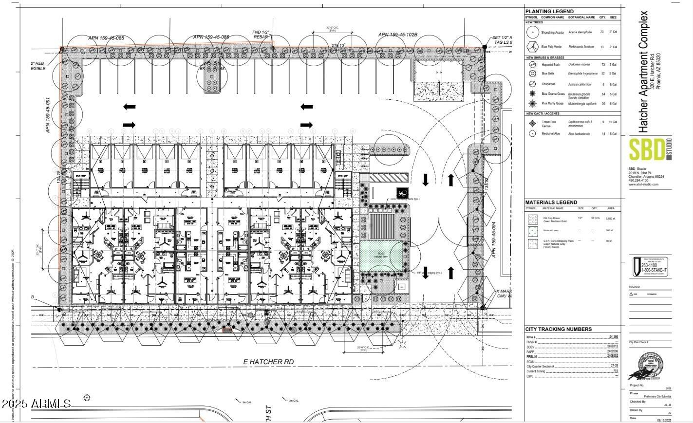
320 E Hatcher Road 6Phoenix, AZ 85020
Due to the health concerns created by Coronavirus we are offering personal 1-1 online video walkthough tours where possible.




Shovel ready, fully approved project awaiting a developer to pull permits. Plan set conveys with sale. This 2 story, 20 unit multi-family project is zoned as R-5 High Density Multi-Family located within the Hatcher District Overlay that allows restaurants, office, and retail within new developments. There are 10 garages, 20 additional surface parking spaces, 4 three bed/two bath, 6 two bed/two bath, 2 one bed/one bath, and 8 studios. The development consists of 16,396 square feet.
| yesterday | Listing updated with changes from the MLS® | |
| 3 days ago | Price changed to $695,000 | |
| a month ago | Status changed to Active | |
| 5 months ago | Listing first seen on site |
All information should be verified by the recipient and none is guaranteed as accurate by ARMLS. Copyright 2026 Arizona Regional Multiple Listing Service, Inc. All rights reserved.
Last checked: 2026-03-07 03:33 AM UTC





















Did you know? You can invite friends and family to your search. They can join your search, rate and discuss listings with you.